Arkitekt og tegnetjenester
Taksering
Ingeniør
Konsulent
Byggesøknad
Referanseprosjekter
Nedlastninger
Om Artikon
Kontakt oss
Ledige stillinger
Blogg
Arkitekt og tegnetjenester
Taksering
Ingeniør
Konsulent
Byggesøknad
Referanseprosjekter
Nedlastninger
Om Artikon
Kontakt oss
Ledige stillinger
Blogg
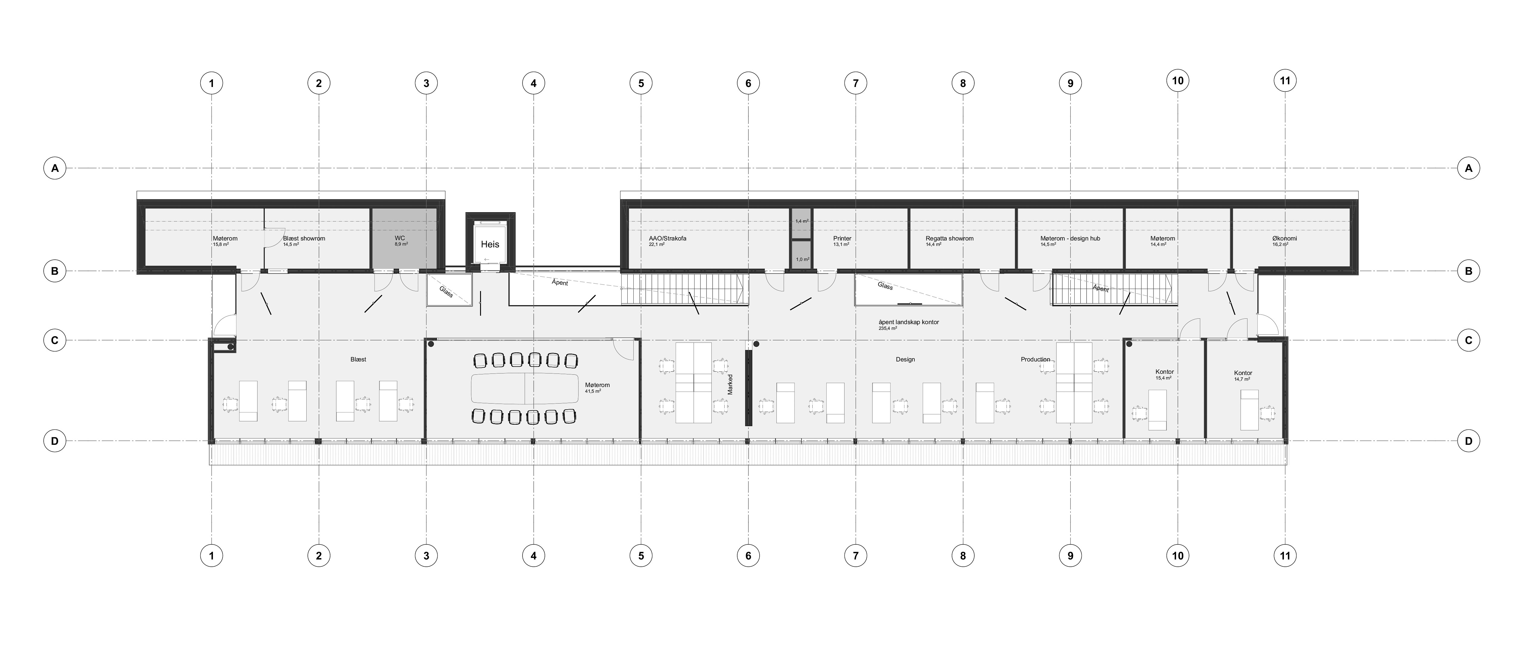
Innvendig oppgradering av Aalesund Protective Wear - Ankerbygget
I dette flotte bygget har vi endret planløsning og interiørarktitektur slik at den passer Aalesund Protective Wear sine behov.
Kjekt når en har plass eget treningsrom
En fin liten møteplass
Når større møter skal avholdes
Åpent og luftig kontorlandskap
God planløsning